Заказчик: Молодая семейная пара с ребенком
Задача: Разработать дизайн-проект квартиры и получить из стандартной двухкомнатной квартиры современную евротрёшку
Наше решение: Подготовили дизайн-проект в современном стиле
Стоимость дизайн-проекта – 184.000 рублей.
Сдача проекта - 2022 год.
Ремонт с дистанционной коммуникацией: проект от студии DESIGNROCKS, который попал в журнал ELLE Decoration.
Премиальный ремонт по дизайн-проекту для молодой семьи
Квартира, которая стала арт-объектом — пространство, сочетающее художественное начало с «умным» наполнением.
Эксклюзивный пентхаус в современном стиле - идеальный пример роскоши и элегантности.
Квартира для дизайнера с открытой планировкой: монументальный проект, в котором предусмотрено всё.
Шикарный проект в современном стиле, который уже успел стать самым популярным среди наших подписчиков.
Проект в современном стиле по готовому дизайн-проекту: на стыке традиций и новейших технологий.
Современный интерьер с элементами Loft
Реализация дизайн-проекта в современном стиле для взрослой пары без детей
Реализация дизайн-проекта интерьера в современном стиле для семьи с двумя детьми.
Уютный коттедж в современном стиле для семьи с ребенком
Дом, в который хочется возвращаться — реализация готового дизайн-проекта в современном стиле.
Создание продуманного интерьера для двух IT-специалистов, работающих с дома
Реализация дизайн-проекта в темных тонах для молодого парня
Стильная и функциональная трехкомнатная квартира для молодой семьи
Роскошная квартира с мощным техническим наполнением: 6 км кабелей для «умного дома» и системой химбиочистки воды.
Квартира, полностью готовая для жизни — комплексный ремонт с мебельным наполнением.
Роскошный, современный проект квартиры для успешного предпринимателя
Просторная однокомнатная квартира в современном стиле для молодой девушки
Стильная и светлая квартира в современном стиле с яркими акцентами
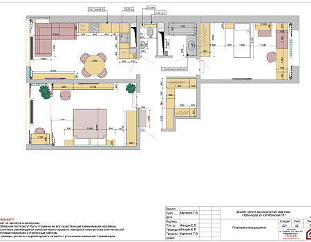
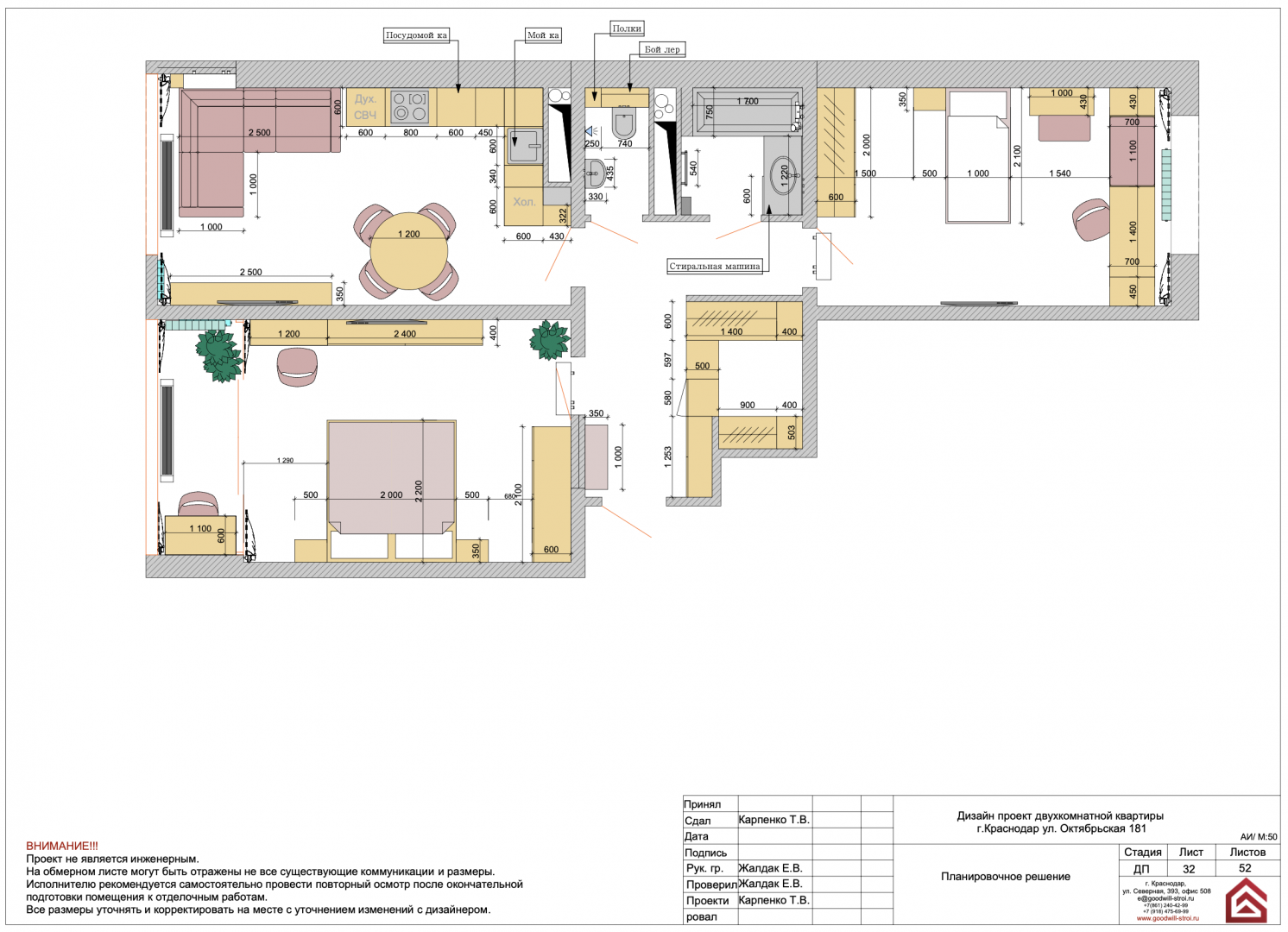
«Двушка», которая стала трехкомнатной квартирой для молодой семьи
Квартира в современном стиле по нашему дизайн-проекту, основой которой стал черный цвет и все его оттенки.
Кропотливая реализация готового дизайн-проекта в минимализме с элементами эко-стиля.
Трубчатые радиаторы, мастер-спальня, антивандальная краска: современная квартира по готовому дизайн-проекту.
Теплый и уютный интерьер в современном стиле
Реализация дизайн-проекта в современном стиле для молодой семьи
Запоминающийся проект с необычной «фишкой» — большой ванной, которая разместилась в спальной комнате.
Функциональное пространство, где нет «пустых зон», и каждый уголок квартиры имеет свое назначение.
Новое прочтение современной классики. Теплая и уютная квартира для молодой девушки.
Роскошная квартира в стиле "неоклассика" для молодой девушки. Настенные молдинги, потолочные карнизы, стены под окраску и инженерная доска.
Невероятно уютная и стильная квартира в современном стиле. Встроенное трековое освещение, крупноформатный керамогранит, просторная душевая и многое другое.
Дизайнерский ремонт коттеджа в классическом английском стиле для большой семьи
Цветной модернизм, золото и царский кирпич: необычный ремонт в стиле эклектика по нашему дизайн-проекту.
Скрытые двери, обилие белого цвета, трековый свет: проект в минимализме для ценителей современных интерьеров.
Современный, монохромный интерьер для ценителей минимализма.
Ремонт по дизайн-проекту для молодой девушки
Ремонт по дизайн-проекту для молодой семьи с ребенком
Современный ремонт для молодой семьи с ребенком
Дизайнерский ремонт для молодой семьи с двумя детьми
Дизайнерский ремонт для молодой семьи
Готовый ремонт — стильный интерьер с качественными материалами без лишних затрат
Лаконичный проект в «спарке» — ремонт огромной квартиры современном стиле, наполненной новейшими технологиями.
Проект-перевоплощение во «вторичке»: как интерьер в духе 90-х стал квартирой мечты.
Мрамор, гипсовые панели, декоративная штукатурка: «нескучный» интерьер в современном стиле.
Ремонт по фиксированной цене в современном стиле — полный комплекс работ «под ключ».
Черный и белый: монохромный ремонт в рамках пакетного предложения «Готовый ремонт по фиксированной цене».
Зеленый и нежно-розовый — цвета, которые стали вдохновением для интерьера квартиры в современном стиле.
Адаптация готового ремонта: исправляем ошибки и создаем гармоничное пространство в классическом стиле.
Квартира, полная воздуха и света — современный интерьер, где простые формы соединились с необычным декором.
Проект в классическом стиле во «вторичке»: путь через глобальный демонтаж к комфортному пространству.
Роскошный объект в стиле неоклассика — гармоничное сочетание традиций и инноваций.
Качество — в деталях. Совершенный ремонт в современном стиле с упором на технологичность.
Современная двухкомнатная квартира по дизайн-проекту от нашей компании
Интерьер в скандинавском стиле: для тех, кто выбирает природную эстетику и практичность в каждой детали.
Ремонт в современном стиле — дизайнерский интерьер осуществим даже с ограниченным бюджетом.
Традиции и современные тенденции — ремонт в неоклассическом стиле в большой квартире.
Неоклассика и современный стиль в одной квартире — ремонт с авторским надзором и подбором материалов от дизайнера.
Неоклассический интерьер в огромной квартире — ремонт «под ключ» с гарантией.
Современный ремонт для семьи — интерьер, который учитывает все потребности хозяев дома.
Качественный современный ремонт "под ключ" по оптимальной цене.
Качественный и современный ремонт в квартире для посуточной сдачи в аренду
Разработка дизайн-проекта и реализация «под ключ» с полной комплектацией
Стильный интерьер с акцентном на натуральность и естественность: оттенки дерева, тёплое освещение, обилие уютного текстиля и природный декор.
Современный и лаконичный дизайн-проект интерьера для молодой семьи.
Изящный современный интерьер с акцентом на натуральные природные материалы
Стильный и органичный интерьер двухкомнатной квартиры
Дизайн-проект в современном стиле для семьи с двумя детьми
Элегантный и продуманный интерьер двухкомнатной квартиры в стиле нео-классика
Современный дизайн-проект для молодой пары без детей
Дизайн-проект однокомнатной квартиры в современном стиле
Не типичный и яркий интерьер в стиле эклектика
Стильный ремонт с лофт-элементами в категории "Лайт-ремонт"
Супер выгодный ремонт в скандинавском стиле без лишних затрат
Ремонт класса "комфорт". Технический дизайн-проект, подбор всех чистовых материалов и работы «под ключ».
Качественный ремонт в сжатые сроки и за оптимальный бюджет
Быстрый, качественный и недорогой ремонт в новостройке — лайт-ремонт с гарантией 2 года.
Cовременный ремонт со вкусом и по доступной цене.
Быстрый, качественный и бюджетный ремонт в квартире-студии для посуточной сдачи.
«Готовый ремонт по фиксированной цене»: предложение, в котором все материалы и работы уже включены в стоимость.
Первый ремонт квартиры за 50 лет: масштабная перепланировка и интерьер «под ключ» в старом фонде.
Быстрый, качественный и недорогой ремонт в новостройке — Услуга "Лайт-ремонт" с гарантией 2 года.
Традиционный интерьер, продуманный до мелочей — уютное пространство для ценителей классики и практичности.
Качественный современный ремонт "под ключ" по оптимальной цене.
Ремонт "под ключ" по оптимальной цене в категории "Лайт-ремонт"
Недорогой, но стильный и качественный ремонт «под ключ» — лайт-ремонт в однокомнатной квартире.