Ваш город:
г. Сочи, ул. Горького, 75 офис 507
Часы работы: Пн-Сб 09:00 - 19:00
Заказать звонок +7 (988) 521-01-11

ДВУХКОМНАТНЫЕ АПАРТАМЕНТЫ 73 М² В ЖК «НА БЕРЕЗАНСКОЙ»

- Дом бизнес-класса клубного типа
- Дизайнерский ремонт премиального качества
- Полная комплектация мебелью и техникой
- Уточняйте актуальную цену
Получить консультацию

ЖК «Дом на Березанской»

Дом бизнес-класса клубного типа, который находится в центральном микрорайоне Краснодара. Дом представляет из себя монолитно-кирпичное 24-этажное здание с 1 подъездом и 147 квартирами. Жилой комплекс был сдан в 2017 году компанией «Основа Инвест»

  • - Дом бизнес-класса клубного типа на 147 квартир
  • - Закрытая территория под охраной 24/7
  • - Подземный паркинг с выходом в лифт
  • - Высокоскоростные бесшумные лифты
  • - Круглосуточный консьерж-сервис

О проекте

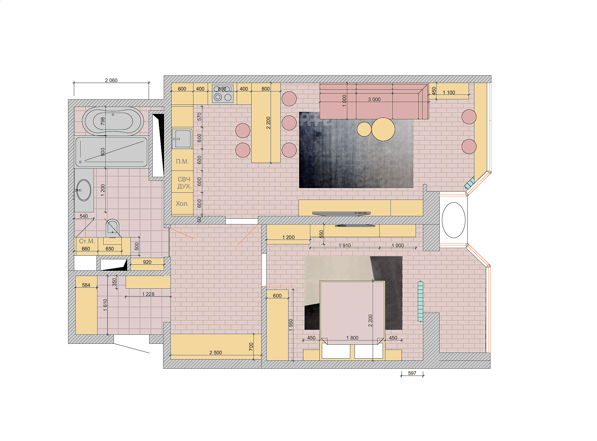
Проект реализован в современном стиле и влюбляет в себя с первого взгляда всех ценителей минималистичных интерьеров. В квартире разместилась полноценная спальня с выходом на лоджию, хол и прихожая с вместительными зонами хранения, просторный санузел, особой фишкой которого стало размещение как душевой, так и изящной отдельно стоящей ванны. Сердцем это квартиры является объединенная кухня-гостиная, в которой разместилась полноценная функциональная кухня с крылом-барной стойкой, а также зона гостиной с удобным модульным диваном.



Премиальное качество отделочных работ и материалов

Хотите на экскурсию по объектам?

Заполните форму ниже, чтобы вместе с руководителем «Гудвилл-Строй» отправиться на экскурсию по нашим действующим объектам
Ваше имя
Ваш номер телефона

Мы не передаем Ваш номер и не рассылаем спам.

Нажимая кнопку, вы даете согласие на обработку своих персональных данных и соглашаетесь с политикой конфиденциальности

Мы используем файлы cookie. Продолжив использование сайта, Вы соглашаетесь с политикой использования файлов cookie, обработки персональных данных и конфиденциальности. Подробнее.
Принять Настроить Отклонить